Adosado con Semi-Sótano y Solarium en Monte y Mar
Detalles
Maravilloso Adosado con Vistas al Mar en Monte y Mar, Gran Alacant
Fabuloso hogar de 3 plantas con solarium, semi-sótano y terraza delantera. Excelente ubicación en una urbanización tranquila de Gran Alacant con una fantástica piscina comunitaria. Orientación Sur y Bonitas Vistas a la Montaña y al Mar desde el solarium.
El bungalow consta de :-
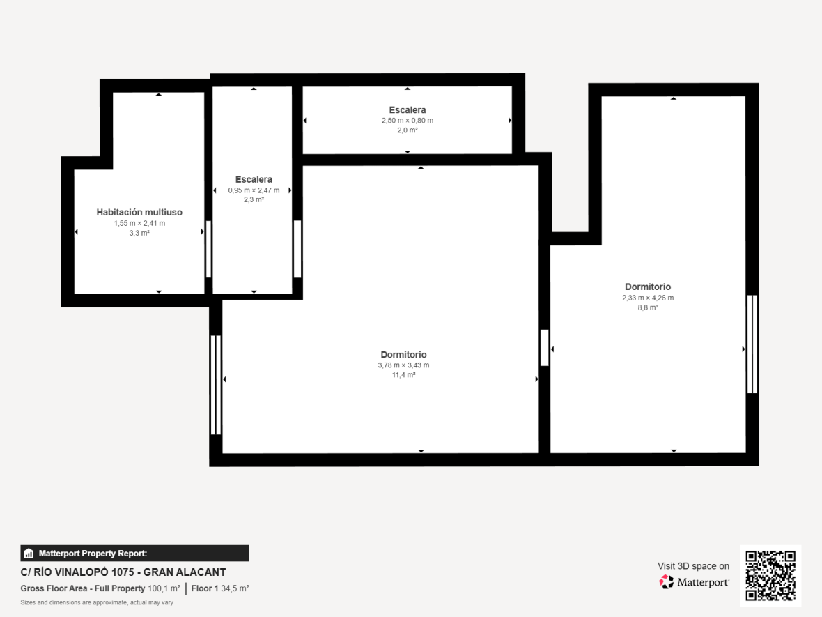
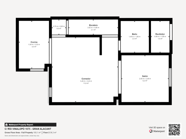
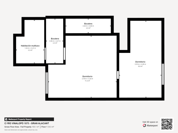
Planta Baja -
Entrada a través de una amplia terraza, perfecta para disfrutar al aire libre.
Luminoso salón-comedor, baño con ducha, cocina completamente equipada.
Primera Planta -
Dos dormitorios dobles con armarios empotrados y un amplio baño con bañera. El dormitorio principal tiene aparato de aire acondicionado y un pequeño balcón.
Solarium - Magnífico espacio, muy privado, con espectaculares vistas panorámicas, desde el mar a la montaña. Una habitación con techo (movible) y puertas plegables hace de esto la zona perfecta para reunirse con amigos y difrutar del excelente clima de la zona todo el año. Además hay un fregadero instalado y una lavadora. Hay, conexión de luz, agua y desagüe.
Semi-sótano-
Amplísima estancia dividida actualmente en dos zonas- dormitorio y salón. Hay un trastero y salida a un pequeño patio. Esta planta es perfecta para usar también como despacho, zona de juego para los niños, dormitorio y salón para invitados.....
La vivienda se vende amueblada y con electrodomésticos y se puede aparcar fácilmente en la calle ancha delante de la vivienda. Hay aparato de aire acondicionado en el salón y en los dos dormitorios.
¡Ésta es una fantástica oportunidad de adquirir un precioso y luminoso hogar familiar con bonitas vistas y mucha intimidad! ¡Contáctanos para concertar una visita!
IBI aprox 260€.
Comunidad aprox 90€ / trimestre.
URBANIZACIÓN MONTE Y MAR
Bonita y tranquila urbanización en el corazón de Gran Alacant. Los vecinos disfrutan de una maravillosa piscina comunitaria con vistas al mar y a la montaña. Cerca de todos los servicios de Gran Alacant y la espléndida Playa del Carabassi está a tan solo 1,5km.
GRAN ALACANT
Entre Alicante ciudad y en el municipio de Santa Pola encontrarás Gran Alacant. Se trata de un conjunto de urbanizaciones, todas ellas situadas sobre el cabo de Santa Pola, entre la sierra de Santa Pola y la magnífica playa de bandera azul del Carabasi conocida por sus finas arenas doradas, dunas y agua transparente. Además, Gran Alacant linda con el paraje natural de Clot de Galvany donde conviven diversidad de plantas y ambientes con una excelente fauna y flora.
En Gran Alacant tienes todos los servicios necesarios al alcance de tu mano: colegio, polideportivo, centro comercial, supermercados, restaurantes, dependencias policiales, biblioteca, parques, centro de salud etc. Respecto a su situación geográfica, se encuentra situada en un punto estratégico: a tan sólo 10 minutos del aeropuerto, a 15 km de Alicante y menos de 10 km de Santa Pola.
Santa Pola a su vez destaca por su gran tradición pesquera. Muy conocido es su puerto marítimo con conexión directa a la Isla de Tabarca y su fabuloso paseo repleto de restaurantes donde podrás disfrutar de la gastronomía típica alicantina y unas agradables vistas.
