Superb FRONT LINE property in Gran Vista complex!
Details
Wonderful Goya-B type property for sale in the exclusive Gran Vista complex in Gran Alacant. A superb beachfront home with 3 floors, 4 terraces, and stunning sea views!
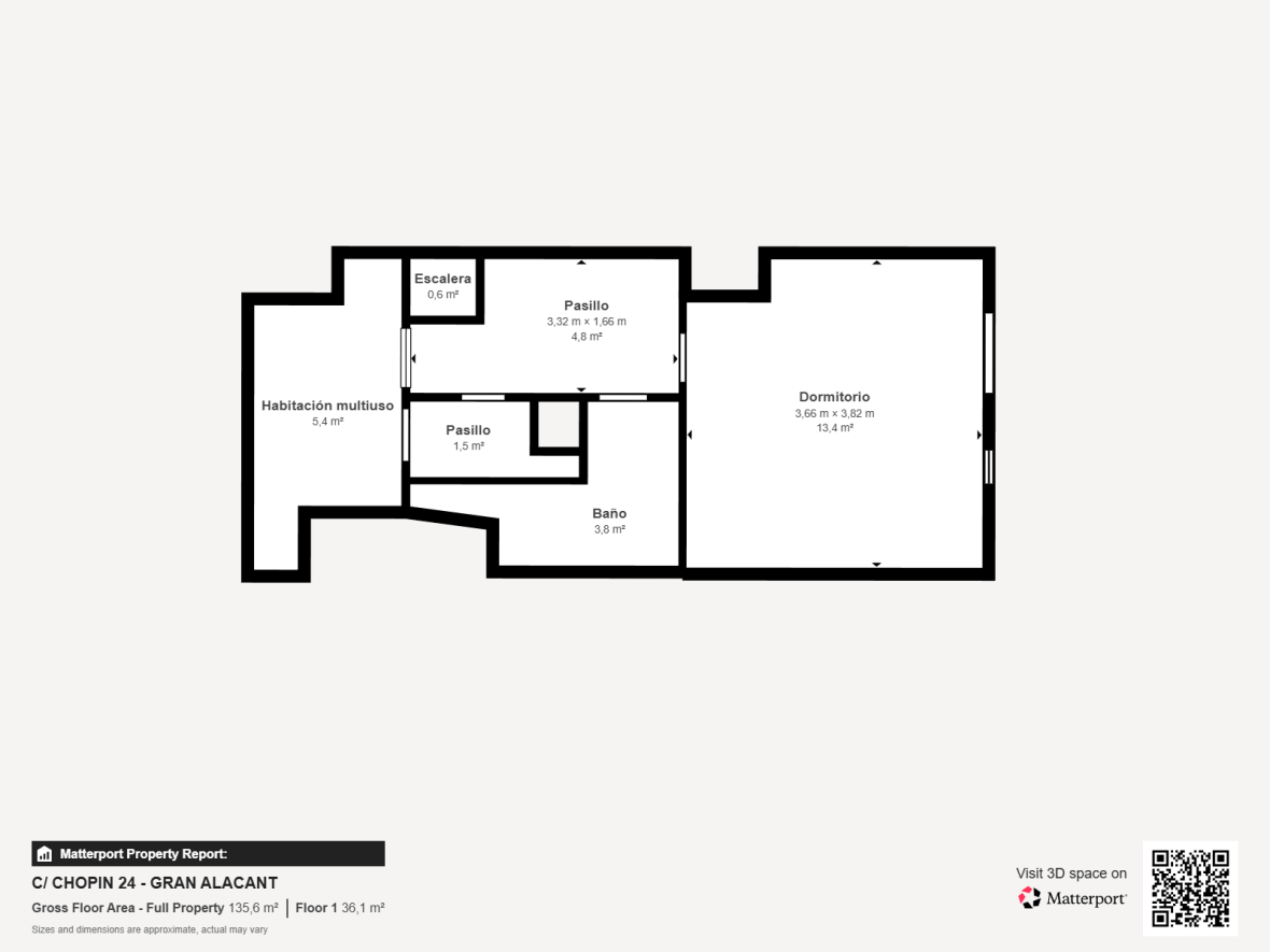
The property comprises:
Middle Floor: Access to the property from the private street of the complex. Outside, there is a west-facing terrace that can also be used as a parking space. Upon entering the property, you will find a spacious semi-independent kitchen and a large, bright living room with double-glazed folding windows to enjoy the spectacular sea views.
Lower Floor: Bathroom with shower and a rear room that can be used as a storage room or another bedroom. Also on this floor is a very spacious double bedroom with built-in wardrobes and access to a splendid, very private east-facing terrace with unbeatable sea views. Here, you will only hear the sound of the waves—a true oasis of peace and tranquility.
Upper Floor: Two double bedrooms with built-in wardrobes, each with its own terrace, and an en-suite bathroom with shower. Splendid sea and Alicante views from the master bedroom terrace!
AC units are installed in each bedroom on the first floor and underfloor heating is present in both bathrooms. The original wooden shutters have been replaced with durable aluminum.
This stunning home is sold in great condition, furnished and with white goods!
Contact us to arrange a viewing!
Property tax (IBI) approx. €400.
Community fees approx. €160/month.
GRAN VISTA
Gran Vista can boast being one of the best private complexes in the area of Gran Alacant, located on the very front line of the cliff. The views over the Mediterranean Sea and Alicante Bay are absolutely wonderful.
This is a large complex with 25.000 sqm of beautifully maintained gardens, 4 swimming pools, children's playgrounds, 2 tennis courts, grocery store, coffee shop and security guard service.
Close to supermarkets, international restaurants, shops, pharmacy, library, parks, and public transport links.
GRAN ALACANT
Between the towns of Alicante and Santa Pola town you will find the area of Gran Alacant, a popular holiday and residential area for people from all nationalities. It is made up of various groups of urbanisations with their own gardens and communal pools. The spectacular Carabasi blue flag beach is nearby and is well known for its fine golden sand, dunes and crystalline water. Near to the beach you will also find the lovely Clot de Galvany Nature Reserve.
All essential amenities are at hand: restaurants, bars, school, sports center, shopping center, supermarkets, library, parks, health center etc. Gran Alacant is situated in an extremely strategic point: only 10 min distance from Alicante airport, 20 min from Alicante and less than 10 min from Santa Pola. Public transport to Alicante and Santa Pola is also frequent. Within Gran Alacant itself there is a lovely open tourist train which can take you around the area, down to the beach,to the shopping center etc.
Nearby Santa Pola is famous for its fishing tradition, its beautiful marina with direct ferry connections to Tabarca Island and its fabulous promenade full of restaurants where you can enjoy authentic Mediterranean food.
